白須賀宿の町屋

2015.11.8

遠州の街道
遠州の宿場町
駿州の宿場町
姫街道など
白須賀宿の町屋


1985年にまとめられた
 湖西市白須賀街並み調査報告書
 株式会社賛同人建築研究所
 昭和60年3月20日

という報告書があるので、これから宿場の建物の様子を見よう。この調査の後、スズキ自動車湖西工場の操業が本格化すると。白須賀の街も少し元気になったが、その代わりに通り沿いの建物は次々と建て替えられて現在に至っている。今後の街並み整備への考察については、上記原本に当たって欲しい。


白須賀宿の成り立ち

白須賀は、江戸期から明治22年までの宿名である。白須賀には古墳時代、弥生時代の古窯群があり、古くから人間が居住した地域である。中世紀に既に東海道沿いの交通の要地であったことは、歌集、紀行文、書状で伺われる。

宝永4年(1704年)の大地震で白須賀宿が流出するまでは潮湖見坂下の元町に宿場があったが、その後現在地に移転した。天領であった為移転に際し幕府の援助があった。家の普請は、江戸の豊田屋、河内屋、入津満本屋に請負わせた記録がある。


潮見坂の下の元町


潮見坂

白須賀宿は東海道33番目の宿場であり、東の新居宿へ1里24町、西の二川宿へ1里17町、江戸からは70里22町45間であった。宿並は、東海道に沿って14町19間の長さで道幅は2間であった。


谷あいで風を防ぐ


曲尺子(かねんて)

台地に移転した時は既に境宿が存在しており、問屋は無かったが高札立場があり「番場」と言われ、今川氏の財源として関銭が徴収されていたという(金田守義氏談)。従って正確には白須賀宿と加宿境宿新田で構成されることになった。

白須賀宿は本陣1、脇本陣1、旅寵屋27軒で、人口は、天保14年の調査では加宿、境宿新田を含めて2,704人、惣家数は613軒であった。宿場人馬は100人/100疋であった。

農業が主であったが田より畑作が主であった。漁師は200戸であったが、戦後地曳網の権利を売ったと言われる。農業のほか旅籠や茶店などの商売を行い、農閑時には男は往還稼、漁猟を行い、女は麻、木綿を織ったと言われる。

現在でも農業は畑作が中心である。店は当時から伝馬町に集中しており、今日でも伝馬町に数多く見られる。飯盛女は一つの宿場に4人という規制があったが、伝馬には8人いたという。白須賀宿の石高は1,063石6斗1升であった。定助郷は享保8年には7カ村であったが、天明6年には33カ村になり惣高9,355石にのぼっている(静岡県歴史の道調査報告書)。

明治22年〜昭和30年、白須賀宿と境宿村が合併して浜名郡白須賀町となる。昭和30年湖西町、昭和47年湖西市の大字白須賀となる。明治44年戸数714、人口4,939、漁船数62、客馬車2、人力車10、荷車329、牛車9であった。この時期に製糸工場は8あり、戦前まで養蚕の盛んな地域であった。昭和25年の戸数は873戸、人口5,084人。

白須賀宿は、旅人や荷物とのかかわりで生計を維持していた為東海道線の設置に反対し、時代の流れにとり残されてしまった。大正期まで天領であるという誇りがありそのことが没落につながったと言われる。しかし、戦前まではこの地方の中心地として白須賀に買物に来る人が多く、地域住民の生活に必要な道具類の修理をする職人衆も多く、自給自足の出来る生活圏を形成していた。劇場もありレジャーの中心地でもあったが、現在の姿から往時をしのぶことは難しい。

現存している古い家屋は殆んど農家であり、旅籠と商店は数軒である。明治期に建てられたものはすべて農家である。養蚕の盛んであった昭和初期には、民家と養蚕小屋を兼ねて建築された家屋が多い。

現在の住民の中には、街道筋は昔のような機能を失い、職業との関連もなく、このままとり残されて衰微していくのではないかという危惧を持つ人が多い。

この街並は保存したくて残ったのではなく、変える理由がなく何もしなかったから残ったという実情が真相に近い。

宿場の構成

宝永5年以前の白須賀宿では、間口割りは平均4.3間であったが、移転後、潮見坂から境宿新田までという限られた地域に宿割りをしたことや、税金が間口に対してかけられた為、基本的には3間2尺で平均3.7間である。本陣は間口22間、奥行23間半、脇本陣は間口10間、奥行17間半で破格の規模であった。

しかし他にも敷地面積200坪以上が6軒あり、本陣のあった伝馬町北は敷地の規模が大きい。西町、東町、高見町の敷地割は画一的で基本の3間2尺である。この規格は宿内の48%を占めているが、4間のものも加えると全体の75%である。しかし現在は隣接する敷地を買い足した家が多い。





奥行はほぼ20〜23間であり、開口の狭さを奥行の深さで補っており、現在でも「暮らしにくい点は特にない」人が%を超える良好な環境を保っている。街道沿いの母屋だけで生活している世帯は珍しく、奥に別棟のある家が大多数である。このような居住形態が大家族を可能としており、農業という生産形態とも適合して、現在でも優れた住環境を保っていると言えよう。

白須賀宿時代から商店は伝馬町と橋町の一部に集中し、両端は殆んど農家であった。現在もその分布をほぼ踏襲し、伝馬町に商店が集中している。商店は「コンドーパン」「太田モータース」などの数例を除き、殆んど原型をとどめておらず保存は難しい。商店の集中する伝馬町については、核家族化も進行し、東町、西町など街道の両端とは意識も異なり、保存の時期を失したと言えよう。白須賀宿は、本陣跡を中心とする伝馬町から原型を崩してきた軌跡をたどることが出来る。

街並み構成の原理

現在の住居は暗くて風通しも悪く、住みにくいのではないかという予想に反して住民は快適な生活を送っていた。その原因は、街道の流れる方位(北西から東南)と、間口が狭く奥の深い敷地をうまく活かした家屋の配置にあることが解る。その謎は街道に面した両側の家の玄関がそれぞれ向いあっていることで解る。



東側の家の玄関は全て向って右側にあり、西側の家の玄関は全て向って左側にある。玄関の続きには決って土間(通りにわ)があり、中庭に続いている。

各戸とも中庭は敷地の東南に位置している。庭の北西側に離れがあり、母屋にも離れにも日照が確保されるしくみになっている。 敷地の両側に迫る丘に対して、平行に納屋が配置きれ強い風を防いでいる。隣家の離れは、庭に吹く風を防ぎ陽だまりを作っている。

街道の両側がそれぞれ同じような居住環境を享受しており、アンケートでも住む側による意識差は全く無かったように、街道の両側がそれぞれ同じような居住環境を享受できるのは、この街道の流れる方向と深い関係があることが推察出来る。

地震により台地に移転する際に、街道の設計を含めて、白須賀宿の全体計画を立案した優れた都市計画家の存在があったのではないか。敷旭の配置計画のルールに各戸が従い、街並みの美しいリズムを生んだのではないかと思われる。

これらの地域計画は、当時としては上意下達の方法で行われたかもしれない。間口3間半という厳しい制約のもとで編み出された町家の知恵でもある。

各戸の居住環境に対するお互いの配慮は、現在でも生きており、住みやすさの理由の上位には、住みなれていること、近隣関係の良さを挙げる人が多く、昔から伝わってきた共同体の意識が今日も生き続けていると言えよう。

しかし江戸時代を復原した配置図には一定の美しいリズムがあるが、その後増築を重ねてこのリズムは壊れ始め、相隣関係や、居住環境としての快適さも少しずつ崩れている。街道に対して直角に妻入りの家を建てることでは、必ずしも優れた居住環境が確保されないことを住民が認識する必要がある。

白須賀の立地環境

白須賀宿は標高50mに位置し、潮見坂のような景観を有しながら宿場は周囲より10m低い窪地に位置し、防風につとめている。街道沿いの住居の裏側には、街道に平行に2本の水路があり、背後の丘からの水を受ける工夫がされている。本陣のあった伝馬町は、街道め中でも最も低い位置にあり風除けを配慮している。

宿並は、東海道に沿って北西〜南東に14町19間であった為、西風が強く江戸時代から大火が多く、安永2年の大火事では高見町から伝馬、橋、東の各町が焼きつくされ、罹災戸数は200余戸にのぼったとある。(湖西近代100年史年表) 

防災対策として、伝馬町の西端に「火防」と呼ばれる土手が、建物の奥行ほどの長さで作られ、火に強いと言われる槇の木が櫨えられていた。現在は槇の巨木が街道の両側に1本ずつ残っているだけで、防火帯は払い下げられてしまい、土塁の一部が残されているだけである。

街道の地盤高は現在より低く、昔は屋敷から2段下って道に出たという。昔は街道への防風処置が様々に工夫されたのであろう。このように白須賀宿は自然の立地環境を巧みに生かし、現代的な科学技術に頼るまでもなく、厳しい自然条件に適応してきたことが伺える。

街道の特色である曲尺子(かねんて)は、軍略上の必要から作られた桝形である。大名のすれ違いにも使われ、幕府の献上品(御用茶など)を違ぶ時には、大名でさえ駕籠から出て挨拶しなければならなかったと言われ、それらの複数の目的にかなった形であった。大名行列の際には、女・子供を隠す為の部屋が民家に特設されるほどに(金田守義家の2階)、大名行列はおそれ多いものであったことが伺われる。この道路屈曲は宿場町特有のものであるが、白須賀の曲尺子はやゝ大きめで、この形状は昔のままではなく少し拡げられている。

その他にも車のすれ違いの為に、伝馬町と西町で道路の一部をふくらませた箇所がある。既にこのように街道は少しずつ姿を変えているが、街道と「車社会」の両立が可能な方策を探ることがこの調査の主な眼目の一つである。

白須賀の立地環境を裏道抜きには語れないほどに、裏道の果たす役割は大きく、暮しやすさの理由として「裏道の存在」を挙げる人が30%を占める。裏道の無い部分もあるが「街道+家並+水路+裏道」が、白須賀の基本的環境であり、裏道の無い所に街道沿いの駐車場が集中し、家並を崩した一因にもなっている。 現在でも駐車場の問題を抱える世帯は14.5%にのぼり、裏道の扱いをどのようにして街道の保存と調和させる回かについて検討する必要がある。

現在の裏道の使用状況は、車の出人りに裏道と裏道を使う人がほぼ半数ずつに分れ、近所づきあいでは実数で裏道122人、裏道14人、全世帯の比率にし47%:5%と裏道の利用率が圧倒的である。街道(=裏道)は、現在でもコミュニティーの交流には主役を果たしており、客人の接待には母屋の街道沿いの部屋を利用する世帯が多く、街道に向きあう住まい方は、今後もずっと生き続けることが予想される。街道のコミュニティーに果たす機能を損なわないように、街並みの保存をはかる方法を探ることがこの調査の課題でもある。

街道の東町東入口から白須賀新所原停車場線の入口までは、鈴木自動車へ往来する大型車が多く通行し、危険なうえ住環境に与える影響が大きい。街道の一部が産業道路を兼ねる現状に何らかの対策が必要である。

白須賀の民家

金田邸







建築当初は寄り付きの玄関側角柱はなかったが、玄関(にわ)との間に千本格子戸だけはあったという。玄関(にわ)とみせは踏天井となっており、中の間と座敷は釣天井となっている。寄り付き、通りにわ、お勝手は一部を除いて吹抜けで、小屋裏あらわしになっていたが、現在は小屋裏あらわしの部分はごく一部である。

金田邸の特徴は、外観からは想像出来ない中2階があること、中2階へは箱段で上り天井をスライドして入るようになっていること、さらにその奥に「かくれ屋」があり、かくれ屋には「みせ」の押入の天井を開けて入るようになっていること、建物の西側に表から裏に通ずる通路があり、押入れや床の間の壁に隠された形となっており、それが「かくれ屋」と通じていることである。

吹抜になって小屋裏があらわしになっている寄り付きと土間の一部に天井があるのも、中2階をカムフラージュしているように見える。金田氏の話では、殿様が街道を通る時女・子供を隠し、万一の場合裏へ逃がす為のものであったという。このような隠し通路は現在の太田モータースにもあり、他にも古い建物にはあったことが考えられる。

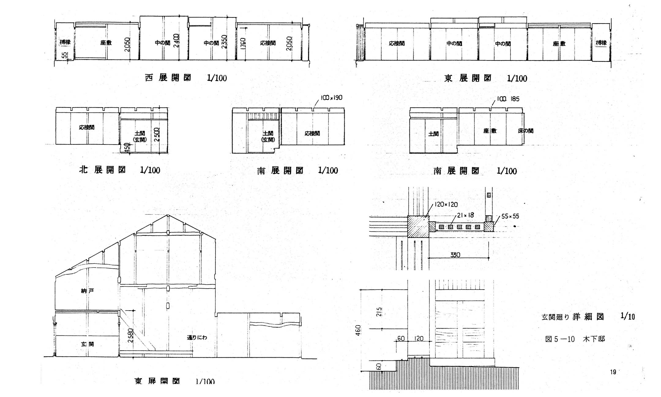
木下邸









当初は間口約6.5mであったが、現在は東隣りを買い増して2軒分を使っている.間口が狭く奥行の深い敷地に母屋、助産所、納屋がきれいに配置され、中庭を生かして肋産所を南東に面して建てている。

玄関と応接間(みせ)との部分と、お勝手、座敷の部分が踏天井となって2階が乗っている。中の間は釣天井となり、中の間に面した土間の部分は吹抜となって小屋裏をあらわし、この部分に天窓を役けている。ここから見える大屋根の小屋組は実に美しく見事である。

その他木下邸の外観に見られる千本格子、出桁による深い軒の出、玄関入口敷居と柱の取り合いなど美しいデテールが見られる。

松下邸







松下邸は明治初期に養蚕農家として建てられたものであるが、白須賀宿の建築様式を残している。他に渡辺邸も昭和の初めに建てられた養蚕農家であるが、ほぼ同様の様式で建てられている。

配置図では、便所、風呂棟と車庫は近年になって建てたものであり、納屋は養蚕専用小屋であらった。現在の配置図から便所、車庫を除いて見ると、母屋、離れ、納屋が美しく配置されていたことがわかる。

平面図である。2階へは階段を上り天井をスライドして入るようになっている。2階のある部分は踏天井、座敷、中の間は釣天井となっているが、天井に自然換気孔がある。蚕を座敷にまで養った為に自然換気が必要であったという。このような換気孔は金田邸にもあり、その他多くの農家に見られる。

図中、お勝手の部分は昭和期になってから増築されたものである。

養蚕小屋としてつくられた納屋の・平面図である。養蚕室と桑の倉庫(土間)があり、養蚕室は風の通りが良いように計画されている。

遠州の街道
遠州の宿場町
駿州の宿場町
姫街道など
白須賀宿の町屋

街並みの歴史