牟呂発電所遺構の調査研究
石 田 正 治
A Study of the Muro Power Plant Remains of Toyohashidento Co., Ltd.
Shoji ISHIDA

豊橋電燈株式會社が明治29(1896)年に建設した水力火力併用の牟呂発電所、その水門の遺構が豊橋市牟呂町に現存している。平成元(1989)年、発電所の跡地は土地区画整理事業の時に発掘された。本稿は、その発掘された発電所の基礎と現存する水門の遺構に関する調査研究である。また、牟呂発電所の歴史に関連して、豊橋電燈株式会社が最初に建設した梅田川の発電所について述べる。

はじめに

牟呂発電所遺構 (1996年5月7日撮影)
豊橋市は、東三河の中核都市である。地理的に交通の要であり、豊川の豊かな流れを背景に、農業を始め、商工業の中心地となっている。

豊橋市の市内を縦断するように 牟呂用水 が流れている。冬の間は水は流れていないが、4月から5月の田植えの時期ともなると用水は満面の水を湛えて、神野新田の水田を潤し、余水は用水流末樋門を通り三河湾に注ぐ。その流末水門から約1.5km溯ったところに赤煉瓦造りの構造物が残っている。豊橋電燈株式會社が建設した水力発電所、 牟呂発電所の遺構 である。本稿は、その現存する牟呂発電所遺構に関する調査研究である。



1.牟呂発電所小史

1−1 豊橋電燈株式会社の設立

豊橋(1)の電燈事業は、明治26(1893)年3月に設立した豊橋商業会議所の最初の事業として計画された。後に豊橋電燈株式会社の発起人となる佐藤彌吉が「電氣燈設立ニ關スル建議書」(2)を会議所に会員有志を代表して提出、上申している。建議書では「(前略)天然ノ商業地タル吾豊橋ノ如キハ體面ヲ一新シ進取ノ氣象ヲ鼓舞シ以テ人後ニ落チサラン事ヲ計畫セスンハアル可ラス故ニ茲ニ電氣燈ヲ設置セン事ヲ欲ス然リト雖モ電氣燈ノ設置ハ地方ニ於テハ事創始ニ屬シ經驗ニ乏シキニヨリ充分ノ調査ヲ遂テ其利害得失ヲ講究セサルヘカラス依テ當會議所ニ於テ調査セラレン事ヲ希望ス」と述べて、時代の趨勢に遅れることなく電灯事業を創始したいとする意志と、それが故に豊橋のような地方の小都市で電灯事業を始めるには他に先例が少なく充分な調査研究が必要と述べている。的を射た建議であった。

佐藤彌吉の建議を受けて、豊橋商業会議所は佐藤の他、三浦碧水、佐藤市十郎、宅間菊太郎、杉田権次郎を調査委員に選び、各地の電灯事業の調査を行った。「その結果、豊橋のような人口1万人位の小都市でも二里以内の地点に幅一間、深さ二尺、高さ一丈の水流があれば水力利用で三〇〇燈の電氣燈設置の可能性が判明」(3)したのである。

調査結果を踏まえて、三浦碧水、佐藤彌吉、白井直次、高橋小十郎、宅間菊太郎、伊東米作、杉田権次郎、福谷元次の8名が発起人となり、明治26(1893)年9 月、資本金15,000円の豊橋電燈株式会社の発起認可願(4)を農商務大臣に提出、また「電燈点火営業御允許願」(5)を同年11月に愛知県知事に出願、翌明治27(1894) 年1月に知事より電灯事業営業の許可を得た。同年2月11日に創業総会を開いて定款(6)を定め、初代社長に杉田権次郎、取締役に福谷元次、伊東米作、監査役に三浦碧水、白井直次を選び、豊橋電燈株式会社(以下、豊橋電灯と略)が設立(7) した。本社は豊橋町大字八町152番地に置かれ、最初の発電所を梅田川に建設、明治27年4月1日から営業を開始した。豊橋電灯の設立は全国で14番目(8)、愛知県では名古屋電灯株式会社に続いて2番目、営業開始は全国で15番目(9)であり、佐藤彌吉が建議したように比較的早い電気事業事始めであった。

1−2 梅田川発電所

わが国の初期の発電方法は、火力発電である。石炭を炊いてボイラで蒸気を作り、蒸気機関を動かして、その動力で発電機を回して発電した。発電機や蒸気機関は欧米から輸入したものであった。

ところが豊橋電灯ははじめから水力発電を計画していた。水力発電は、明治21(1888) 年に宮城紡績に5kWの試験発電に成功したのが初めで、ついで明治23(1890)年に下野麻紡績が実用の自家水力発電を行っている。電気事業としての水力発電は琵琶湖疎水を利用した京都市水利事務所の蹴上発電所が最初で、これは明治24(1891) 年11月(10)のことであった。

豊橋電灯が最初に発電所を建設したのは渥美郡高師村(現豊橋市)の地で、ここを流れる梅田川の水力を利用したのである。この高師村の発電所を本稿では、梅田川発電所と呼ぶことにする。発電所の設計は、当時各地の水力発電所を手掛けていた大岡正(11)である。

発電所の設備は、電燈点火営業御允許願(12)によれば「(前略)日本形水車場ヲ改造シテ「レッパー」氏弐拾三実馬力ノ水車ヲ装置シ、「マーザープラット」氏高圧交番弐拾六燭光(13)三百燈ノ電量ヲ発生スル発電機ヲ備ヘ、之ヲ発電所トナシ、同所ヨリ豊橋町ヘ電燈線ヲ架設シ、電燈点火営業仕度候間御允許相成度(後略)」とあり、レッフェル(レッパー)型23馬力の水車とマーザープラット型交流発電機の設置を予定して申請したようである。

また梅田川発電所については、当時の専門誌『電氣之友』に次のように紹介されている。

「豊橋の電燈 明治二十七年に始めて起工したる発電所は豊橋停車場より東方貳里半程なる二タ川(二タ川ステーションに沿ひたる筋を見るに今は殆ど水なしと云ふも可なり)在高師村梅田川の水力を使用其落差僅々八呎之に和製レッフェル式水車を据付たれども何分水量不十分の為め思はしからぬ所より其後いろいろの技師も手を出し種々調査する所ありたるが此水量にては到底營業の見込なし(後略)」(14)
「(前略)明治二十六年十月一會社を設立し二十七年四月點火を開始す機械の供給者総て濱松電燈と同じく三吉電機工場にして専ら工事に與りたる技術家も亦大岡正氏なり尤も其筋へ届出たる主任の技師は工學士丹羽正道氏なりと濱松と同じく水力を利用するの設計にして豊橋より大凡二里許りを距たりたる高師の小流を使用す其落差十呎之に三吉工場製レッフェル式水車と貳千ヴオルト十五キロワツト発電機各一台を据付たり、濱松電燈に比すれば幾分かよろしき方にて兎に角實用に供せられしも何分にも季節に依り水の欠乏を来す事ありて不十分(後略)」(15)

梅田川発電所の発電設備の詳細はなお不明な点があるが、以上の記事を整理してみると、発電所の設計は大岡正、水車は三吉電機工場製のレッフェル型水車、水車発電機(16)は、2000V、15kWの三吉電機工場製の単相交流発電機であったと考えられる。三吉電機工場は、当時有数の電気器具製造業者三吉正一の経営する工場で、初期の国産の発電設備はこの工場で造られた。同工場は明治31(1898) 年に日清戦争後の不況で倒産している。

各記事にも述べられているが、豊橋電灯第1回事業報告書は、営業状況について「(前略)加之水車構造宜シキヲ得サリシガ為メ点燈常ニ如意ナラズ、光度尚通常『ランプ』ニ及バザルコト往々ノ次第ナルヲ以テ当半季ニ於ケル営業ノ報告中喜ブベキノ事項ヲ見ル能ハズ、(中略)己ニ当半季末数日来水火両力併用ノ好果ヲ表ハスヤ点燈申込ノ数漸ク増加スルニ至ル、(後略)」(17)と報告し、水量不足で計画通りに発電できず、蒸気機関を併設して凌いだ。また、大岡正の設計は十分なものでなかったようで、水車は三吉電機工場で取り替えられている。いずれにしても梅田川の水力発電は期待はずれに終わり、火力発電では発電所を遠隔地に造る意味が失われ、次の牟呂発電所に設備は移されることになる。

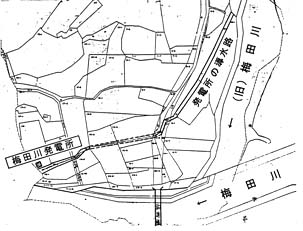
郷土史家夏目正明氏(18)の調査によって、梅田川発電所の所在地が明らかになっている。その所在地を図1に示す。

1−3 牟呂発電所

前述のように三河地方では最初の水力発電所、梅田川発電所は失敗といってよい状況であったので、早急に新発電所の建設が模索された。豊橋電灯では、水量が豊富な豊川上流の寒狭川に着目したが、発電所の建設工事費が約25万円と多額になりこれは実現されなかった。そこで、豊橋電灯の役員会は、明治28(1895)年5 月完成したばかりの牟呂用水の水力を利用(19)することを決め、渥美郡牟呂村大西(図2)に発電所を建設することになった。

牟呂用水は、もともとは毛利祥久の事業になる毛利新田のための用水であった。しかし新田は後の濃尾大地震や暴風雨のために堤防が決壊して壊滅してしまい、用水の水路や堰堤もまた壊れてしまった。毛利の事業を受け継いだのが実業家の神野金之助である。土木工事を人造石工法(20)で知られる服部長七に任せて、神野新田(21)は明治27(1894)年に完成した。同年、牟呂用水も水門や水路を修復して完成している。

豊橋電灯の新発電所は、その牟呂用水の流れを利用する水力発電所として、明治29(1896)年9月に完成している。以下、この新発電所を「牟呂発電所」と呼ぶ。

豊橋電灯は、明治28年5月4日、梅田川発電所の不成績を理由に三吉工場に同発電所の設備を原価で引き取らせ、出力600燈用の新発電機と水車を発注した(22) 。発電所の設計は名古屋電燈の技師丹羽正道、工事監督は三吉電機の小田庄吉が任に着いた。水車は直径42インチのヘルキルス(ハーキュルス)形、水車発電機は三吉電機工場製の2000V、30kWのホプキンソン形単相交流発電機が設置された(23) 。16燭光の電燈600燈分の発電出力であった。なおここでも用水の水量だけでは十分でなかったようである。そこで、開業二カ月後にボイラと横置単胴型の蒸気機関を据え付け、水力を補助する発電方式とした。火力水力併用方式は全国的にもきわめてめずらしいものである。実際には、水量不足で水力よりも火力中心の発電となった。さらに、豊橋電灯は電力需要増大に応じるために、明治33(1900) 年に発電機を出力30kWから50kWに変更し、明治38(1905)年4月には芝浦製作所製の中古の蒸気機関を増設し、元の30kWの発電機を使用できるようにしている。明治38年の牟呂発電所の設備は次のようである(24)。

発電機 ホプキンソン形単相交流発電機 30kW 1台 明治29年
ホプキンソン形単相交流発電機 50kW 1台 明治38年
水 車 ヘルキルス(ハーキュルス)形水車 50馬力 1台 明治29年
ボイラ 火焔式 50馬力 2台 明治29年、明治38年
蒸気機関 三吉電機工場製横置単胴型蒸気機関 45馬力 1台 明治29年
芝浦製作所製蒸気機関(30kW発電機用) 1台 明治38年

2.牟呂発電所遺構 の調査

2−1 牟呂発電所の基礎構造

平成元(1989)年、牟呂発電所のあった牟呂地区の宅地造成のための土地区画整理事業が行われた。その時に発掘されたのが写真2の発電所の基礎である。現存する水門から少し下流の左岸(牟呂用水の南側)にあり、水門の所で用水を堰止めて導水路でここまで導いて発電したのであった。

筆者は市内在住で比較的身近に住んでいるが、この区画整理事業で牟呂発電所の遺構が発掘されたことを知らずにいた。話を聞いたのはすでに遺構が撤去された後であった。

幸いに遺構の概要が事業者により測量調査されていて、その記録と写真が豊橋市役所土木部河川土木課に保存されていた。以下に、河川土木課から提供された写真と測量図をもとに遺構の概要を述べる。

なお遺構の図3は、測量図を基に筆者が整理して作成したものである。

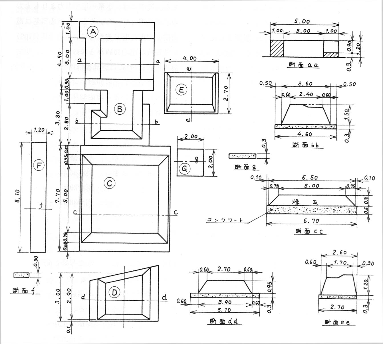
図3は牟呂発電所の遺構を上から見たもので、大きく7つのブロックに分けられる。各ブロックには説明の便宜上、記号AからGを付し各ブロックの断面も示した。用水路はブロックAの上部に位置している。表1は、各ブロックの大きさを量として示したものである。

調査と写真から分かることは、ブロックAからブロックEまでが煉瓦を使用しいる。ブロックF、Gは、コンクリートのみであるので、発電所建設当時のものではないと考えられる。

ブロックAは、内部が四角の空洞になっていること、用水に最も近い位置にあることからして、ここが水車場の基礎であることは明らかである。図3に示すように水門側の辺が低い構造となっていて、ここに導水路が引かれていたと考えられる。表1から明らかのように、ブロックAのみが煉瓦だけで造られている。

ブロックAに隣接するブロックB、さらにブロックBに隣接するブロックCは、コンクリートの基礎の上に煉瓦を角錐台状に積み上げている。煉瓦の積み方はいずれのブロックもイギリス積である。調査ではブロックA、Bと区別しているが写真2からは一体の構造物と見られる。ブロックCは、遺構の中で最も大きく、煉瓦を少なくとも13段に積んでいる。ここには、蒸気機関が設置されていたのではないかと考えられる。従って、ブロックBの部分にフライホイールと発電機が設置されていたと推定できる。その他の部分では、ブロックDが測量では図2に示すように一辺が斜めに変形しているが、写真2によれば削り取られたように見え、元は4角形であったと考えられる。ブロックCとブロックDの間隔は測定されていない。写真2からみる限り2m前後の間隔であると推定される。写真5のブロックDは、ブロックCに対して、上面の位置は低く、地表面と同じ高さである。従ってボイラの基礎と考えるのが妥当と思われる。

ブロックA ブロックB ブロックC
ブロックCD ブロックD

ところで前項に述べたように、牟呂発電所は水力火力併用であった。蒸気機関が横置単胴型であることを念頭に、水車、水車発電機、蒸気機関の配置を考えて軸の回転方向を想定してみると、前述の配置ではやや無理があるように感じられる。また、増設した発電機と蒸気機関の配置がどうであったのか、これを断言するには資料があまりにも乏しい。前項の水車、発電機、蒸気機関、ボイラの具体的な構造と大きさを詳細に調べて検討してみる必要がある。

表1 構造物取壊数量集計表
(豊橋牟呂土地区画整理事業) (単位:立方メートル)

ブロック 煉 瓦 コンクリート 合 計
20.20 0 20.20
12.43 3.86 16.29
26.90 30.95 57.85
9.63 5.35 14.98
7.88 3.24 11.12
0 2.91 2.91
0 1.20 1.20
合 計 77.04 47.51 124.55

2−2 牟呂発電所の取水水門

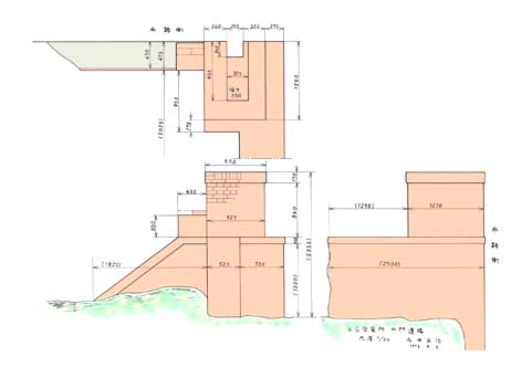
写真6 牟呂発電所の遺構・水門 図4 水門の調査図

牟呂発電所の遺構として現在残っているのは、写真6に示す取水のための水門である。地下の基礎構造物は発掘されてないので不明であるが、地表部は測量可能であるので、その測量結果を図4に示す。用水を挟み、門柱のような形状をしていて、左右対称の遺構である。煉瓦ひとつの大きさは、平均220×105×60mm、イギリス積で一部に装飾的な積み方がされていて、景観に配慮して造られていたようである。水門の所の用水路幅は4m14cmである。また、水門と発電所の水車場の距離はおよそ32mである。牟呂用水はすでに改修されているので、取水口と排水口の位置は確認できない。道路の下に遺構が残されている可能性がある。水門の用水に面した壁面には、仕切り板が入る溝がある。(写真6)


3.まとめ

牟呂発電所は、梅田川発電所の蹉跌により建設された水力火力併用の発電所である。その完成は、日本の発電事業史の中では明治29(1896)年と草創期に位置づけられる。この時代の日本の発電技術は残されている資料が少ないためにまだよくわからないことが多い。その解明の手掛かりとして、牟呂発電所の遺構の調査は当時の発電所の状況と技術を再現するのに必要である。現在、その遺構の基礎的な調査が終了したに過ぎない。前項で若干論じてはいるが、今後は調査結果を基に発電設備機器の配置状況などを明らかにして、当時の発電技術の歴史的評価を試みる必要があろう。いずれにしても、豊橋電灯が当初から水力発電を目指していたことは注目される。また、豊橋電灯の梅田川発電所、牟呂発電所はともに国産の技術で建設された。国産技術による発電所建設が一般化するのは大正時代以降であるから、この分野の黎明期の技術を考察する上で牟呂発電所の調査研究は重要な意味を持つものである。


謝 辞

牟呂発電所の遺構については、豊橋市役所土木部河川土木課より測量図ならびに写真という基礎資料を提供していただいた。梅田川発電所については、夏目正明氏より助言いただいたことが参考になった。中部電力(株)浅野伸一氏からは『電氣之友』の写しなどの資料を提供していただいた。記して、関係の諸氏に多謝とする。

[注]

(1) 豊橋が市制となるのは、明治39年8月1日からである。以前は豊橋町であった。 (2) 中部電力(株)「中電三河」第158号(昭和53年3月)に全文が掲載されている。建議書は明治26年6月付。 (3) 豊橋市史編集委員会『豊橋市史 第三巻』昭和58年3月31日 (4) 豊橋電燈株式會社発起認可願」明治26年9月4日、国立史料館蔵。『豊橋市史 第八巻』昭和54年3月 31日、所収。 (5) 電燈点火営業御允許願」明治26年11月8日、国立史料館蔵。『豊橋市史 第八巻』昭和54年3月31日、 所収。 (6) 豊橋電燈株式會社定款」明治27年2月11日、国立史料館蔵。複本が愛知県公文書館にある。 (7) 農商務大臣からの設立認可は、同年3月8日。「豊橋電燈株式會社第一回営業報告書」明治27年7月17 日、国立史料館蔵。『豊橋市史 第八巻』昭和54年3月31 日、所収。 (8) (社)日本工学会『明治工業史 電氣編』昭和5年 (9) 中部電力電気事業史編纂委員会『中部地方電気事業史 上巻』平成7年3月20 日、23頁 (10) 関西地方電気事業百年史編纂委員会『関西地方電気事業百年史』昭和62 年12月、明治25年1月より電 気事業開始許可(京都府)。
(11) 大岡正については、浅野伸一「水力技師・大岡正の人と業績」『シンポジウム「中部の電力のあゆみ」 第4回講演報告資料集』中部産業遺産研究会、1996 年5月11日に詳しい。
(12) 愛知県編『愛知県史 下巻』大正3年。同文は、前掲「電燈点火営業御允許願」にもとづいて書かれ たもの。
(13) 文中「弐拾六燭光」は、愛知県史(大正3年版)では「貳拾六燭光」、豊橋市史第8巻では 「弐拾六燭光」とあるが、いずれも誤りで十六燭光が正しい。原文では「高壓交番式拾六燭 光」。 燭光は明るさ(光度)の単位で、1燭光はローソク1本の明るさ。16燭光は、現在の電球では20Wより 少し明るい程度の明るさである。
(14) 志げのり「東海道旅行記」『電氣之友 第九十三号』明治32年4月15日、「二タ川」は二川、八呎は 約2.5m。ルビは筆者。
(15) 三春生「十日間の旅」『電気之友 第百六十九号』明治38年8月、ルビは筆者
(16) 水力発電用の発電機を「水車発電機」と呼ぶ。電気学会通信教育会編『水力発電』電気学会、昭和41 年7月より。
(17) 前掲「豊橋電燈株式會社第一回営業報告書」、事業報告書は営業報告書と同一の綴り。
(18) 夏目正明:豊橋市草間町在住
(19) 豊橋電燈株式會社第三回事業報告書」明治28年7月28日、国立史料館蔵。『豊橋市史 第八巻』昭和54年3月31日、所収。同報告書では牟呂用水路を吉田新田用水路と記述。
(20) 人造石工法とは、左官の伝統的技法「たたき」を応用して近代的土木構造物を造る工法を言う。
(21) 神野金之助は、はじめは「じんの」と称していたようである。後に「かみの」と呼び方を変えたため に、神野新田の「じんの」と呼び方が異なる。
(22) 前掲「豊橋電燈株式會社第三回事業報告書」
(23) 前掲『電氣之友 第百六十九号』
(24) 前掲『電氣之友 第百六十九号』


<参照>

牟呂用水の歴史と人造石工法の遺産

牟呂発電所 -草創の灯はここから−

◆リンク→ 牟呂用水の地域と自然・歴史


http://www.tcp-ip.or.jp/~ishida96


This site is maintaind by Shoji Ishida. For more information about the this site, please write in Japanese, in english, auf Deutsch : ishida96@tcp-ip.or.jp


Copyright(c)1997 by Shoji ISHIDA   All rights reseaved. Update : 1997/1/23

0000since 2007/2/19