|
|
|
|
|
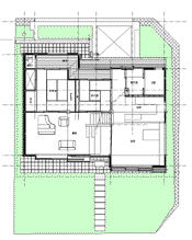
昭和40年代の分譲地 天竜杉の家 Seven Years After 実施図面(.pdf) 昭和40年代の分譲地での建て替えです。当時の分譲地としては余裕のあるスペックで、御近所にもそれなりの方々が住んでいらっしゃる様です。しかし現在の住まいから見るとい床面積30-40坪とこじんまりしており、それより何より成人家族数が車の台数、という訳で、当時の敷地はパンクしてしまいます。で、地下駐車場というのが最近のスタイルです。 昔の家 | ||
| 少し昔の住宅、特に農家建築では大黒柱というのはけっこうポピュラーな架構法でした。 「昔風の、普通の家が欲しい。」というお話を伺って、大黒柱について考えてみたのですが、これが結構興味深いものでした。2階床を1寸厚の杉板で踏み床にして、3尺間の床梁で受けることにします。床梁の梁間が2間ですから成りを1尺として、同じく1尺の梁と差し鴨居で受けます。 棟梁(むねばり)を丸太にすると、小屋梁を受ける為に末口8寸となります。これを4間半も飛ばせば、元口は1尺5寸近くになります。近代的な荷重計算からすれば、これを4寸柱で受けても構わないはずですが、ここが座敷きと洋間の境、昔でいえば座敷きと土間の境に当たるので、四方から集まる胴差しによる断面欠損を配慮して、という理屈をつけて1尺角の大黒柱を棟梁まで通すこととしました。 和室の間仕切部分の、昔でいえば小黒柱に当たるところにも同じく1尺の通し柱を置きました。 構造図を睨んでいて、浮き上がってきたのは「鳥居」というか、伊勢神宮からインドネシアのトラジャの建物に至る東アジアの稲作地帯で、神聖な建物の根源的な構成とされる「棟持柱」のイメージでした。 伝統的な農家住宅では大黒柱は小屋床梁を支えて上には延びず、上部は棟梁を使わない合掌構造となっています。合掌構造の草屋根ははるか昔の、縦穴住居の時代の技術を継承したものでしょうが、そうした農家建築でも大黒柱が神聖なものとされたのは、神社の天地根源造りにおける神聖な「棟持柱」と同じ意味合いをこめたものではないでしょうか。
うーん、棟梁(とうりょう)というのはこういう仕事をする人のことだったのだ。施工は番匠さん。
| |
|
10月には棟上げが終わりました。こうしてみるとなかなかそれらしいと自画自賛。
| ||