-Not So Small House
-Court House
-Let the Sunshine In
-Open Plan
-Say Hello
-Rabbit Cage
-When I'm sixty-four
-月見の宴
-寄付
-Slide Show
-実施設計図(pdf)



中庭の廻りは「家族のためのパブリックスペース」で、ドアがありません。いわゆるオープンプランです。一時「オープンプラン」という言葉が流行しましたが、さっぱり根付かなかったのは断熱性能が全く考えられていなかった為と思われます。伝統的な日本家屋では夏は襖、障子といった間仕切りを開け放し、冬は閉め切って4畳半・6畳といった小部屋を暖房する、というのが普通でした。障子の外は外気、という時代の暖房法がつい最近まで受け継がれてきた訳です。

この家ではホルムアルデヒド騒ぎを起こしたグラスウールでなく、外壁140mm、屋根190mmのセルロースファイバーを吹き込んでいます。温暖な浜松ではなかなか試されることのない断熱法ですが、ひとつ峠を越せば信州であり、飯田市にはセルロースファイバーの吹き込みをしてくれるエコトピアさんがあります。飯田市は実は浜松の「となり街」なのですね。

さらに大切なのは開口部です。壁をきちんと断熱しても、開口部が単層ガラスだと、半分以上の熱は窓から逃げてしまいます。複層ガラスを使うことで、開口部をおおらかに採りつつ、断熱性能を落とさずに済ませることが出来ます。断熱性能を上げることは省エネだけでなく、冬の暖房が部屋の中の部分的な温度差を少なくし、「柔らかい」暖房にする効果もあります。

もうひとつ、複層ガラスの断熱サッシを使うとおまけに付いてくるのが「遮音性能」です。この家も国道1号線から300m程のところにありますが、窓を閉め切ると静けさが違います。



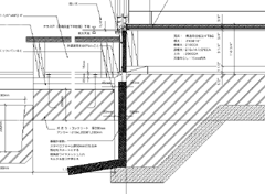
奥様が北海道育ちの為、これまでこの家では薪ストーブで冬を越すことに慣れていらっしゃいました。今回はさらにストーブの廃熱を床下に吹き込んで床暖房を行い、同時に基礎に熱を貯えることにし、ストーブ一台で家全体の暖房を済ませることを考えています。枠組壁工法の床組を利用すれば簡単に実現できるこの方法は、北米では「床下チャンバー」と呼ばれています。上図の色の濃い部分が温風の経路になります。



「雪下ろしもせんヤツが何を考えとるんじゃ。」と笑われつつ、札幌の建築家に色々と知恵を借りた中で、「これは良い。」と採用したのは「スカート断熱」です。基礎外断熱に使う断熱材の残材を基礎から外に向けて敷き詰めるもので、床下蓄熱の上からは基礎をその分掘り下げたのと同じ効果があります。